Whitchurch Lane, Edgware, Greater London. HA8 6QJ

 £1,250,000

6 5 0 1

Full Description


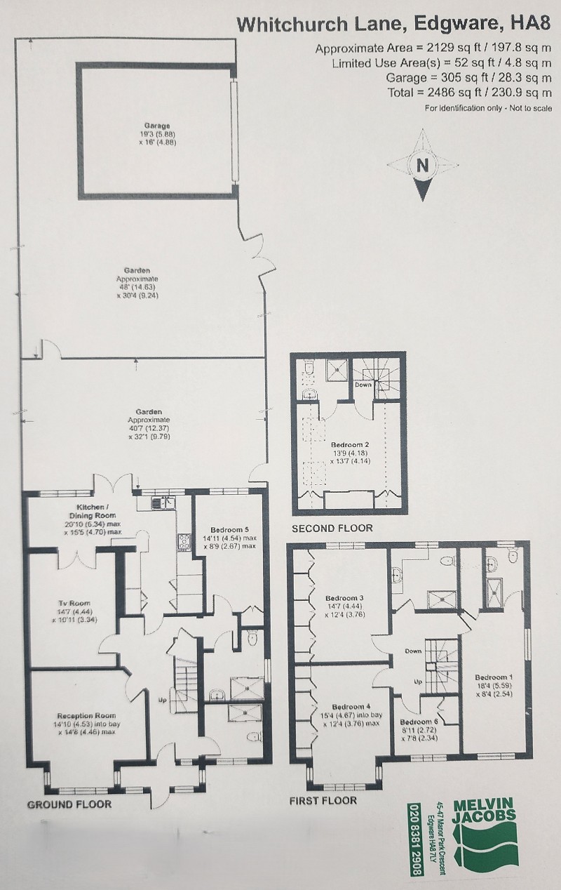
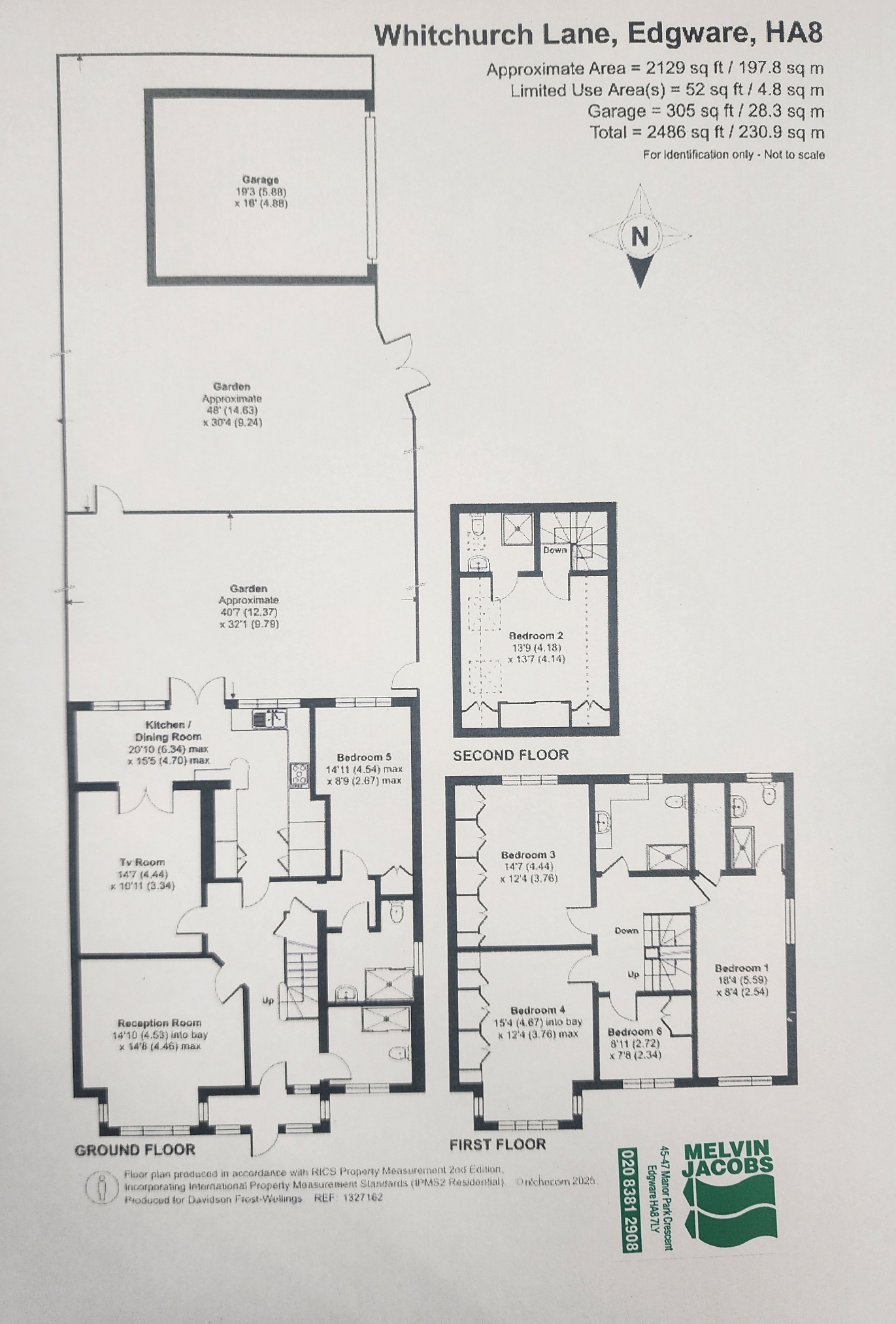
Melvin Jacobs are delighted to offer this rarely available, six bedroom, double fronted, semi-detached house,chain free. On the ground floor the house has two reception rooms, an eat-in kitchen, two shower rooms and a downstairs bedroom. On the first floor there are four bedrooms and two bathrooms, on the second floor there is a further bedroom and bathroom suite. The property is located on a spacious corner plot with a south facing rear garden, gated off street parking for multiple cars as well as a detached garage. The house is within easy reach of local shops and transport links including the tube station, as well as well as local schools. Harrow Council Tax Band F. Viewing is encouraged through Sales Agents Melvin Jacobs 02083812908



Council Tax Band: F





Six Bedroom Semi Detached house



    Features


    6 Bedrooms


    5 Bathrooms


    Corner Plot


    Gated Parking


    South facing garden


    Freehold


    Close to Shops


    Near Transport Links




Reception 1 14' 10" x 14' 8" 4.53m x 4.46m


TV Room 14' 7" x 10' 11" 4.44m x 3.34m


Kitchen/Dining Room 20' 10" x 15' 5" 6.34m x 4.70m


Bedroom 5 14' 11" x 8' 9" 4.54m x 2.67m


Shower Room/WC


Shower Room/WC


GARDEN 40' 7" x 32' 1" 12.37m x 9.79m


GARDEN 48' 0" x 30' 4" 14.63m x 9.24m


Garage 19' 3" x 16' 0" 5.88m x 4.88m


First Floor


Bedroom 1 18' 4" x 8' 4" 5.59m x 2.54m


Bedroom 3 14' 7" x 12' 4" 4.44m x 3.76m


Bedroom 4 15' 4" x 12' 4" 4.67m x 3.76m


Bedroom 6 8' 11" x 7' 8" 2.72m x 2.34m


En-suite shower room


Shower Room


Second Floor


Bedroom 2 13' 9" x 13' 7" 4.18m x 4.14m


















Melvin Jacobs
45-47 Manor Park Crescent
Edgware Middlesex HA8 7LY
Tel: 020 8381 2908

info@melvinjacobs.com